隔膜(mó)式多功能水泵控(kòng)製閥

產品概況

產品型號:JD745X 

公(gōng)稱通徑:DN50~600mm

公稱壓力:PN1.0~4.0MPa

適用溫度:0°C~80°C

適用介質:水


產品(pǐn)詳情

JD745X隔膜式多功能水泵(bèng)控製閥是安裝在高層建築給水係統以及(jí)其他給水係統的水泵出口處,防止介質倒流、水錘及水擊現象的智能型閥門。該閥(fá)兼具電動閥、逆止閥和水錘消除器三種功能,可有效地提高供水係統的安全可靠性。並將緩開、速閉、緩閉消除水錘的技術原理一體(tǐ)化(huà),防止開泵水錘和(hé)停泵水錘的產生。隻需操作水泵電機啟閉(bì)按扭,閥門即可按照水泵操作規程自(zì)動實現啟閉,流(liú)量大、壓力損失小。隔膜式適用於DN600mm口徑以下的閥門。


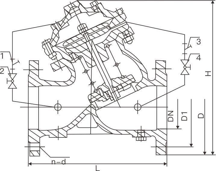
隔膜式(shì)多功(gōng)能(néng)水泵控製閥(圖1)


隔膜式多功能水泵控製閥(圖2)

產品推薦